I took a class at the convention a few years back that was all about how architects should talk to non-architects, because apparently we are actually really bad at it. Who knew? We were provided a list of 10 things we should all do. Don’t worry, I’m not going to go over all 10 here, you’ll just have to come to the next convention and hope they offer it again. but one in particular has stood out to me, and has seemed to work its way into my head no matter what I am working on during the day. “Architecture is storytelling”, and in case you were wondering, it was number 10 on the list. I think it was put there so we would remember it the most. We present our designs in ways that, hopefully, will peak our clients imagination and help them see that vision; we are part of an ongoing story during the entire construction process that involves trials and tribulations that no one ever saw coming; and yes, our construction drawings tell the story of how our client is going to one day utilize in reality what was once just a simple idea. Yeah, that sounds all idealistic and such, but how on earth does that really relate to the meat and potatoes part of architecture – our construction documents. I thought I would share where the storytelling part of it does and definitely does not belong.
Alright, if you work in the field of architecture, there is one thing that I am going to go out on a limb and assume everyone has worked on, construction drawings. Lots of drawings, notes, disclaimers, warnings, you name it. The entire set of drawings should paint a pretty good picture of picture of what the design is. If it doesn’t well you might have bigger problems than I can write about here. But that gets to my point, the entire set of drawings is the story, not one page or one detail, the entire set. the other thing a lot of us have experienced in our careers is that one person who doesn’t seem to understand this, and wants to write a paragraph for each note on a drawing.

If someone you know is writing notes like this, please, tell them to put down the mouse and keyboard, turn around, and walk away. There is no need for this, just don’t. I’ve modified the note to protect the guilty party. You know who you are. Notes on construction drawings have a very specific job, to inform the person who is reading the documents what the material is that is being pointed to. That’s it, it really is that simple. If you need to go to the extreme that is shown above, maybe the drawing is not doing its job as well as it should be doing.


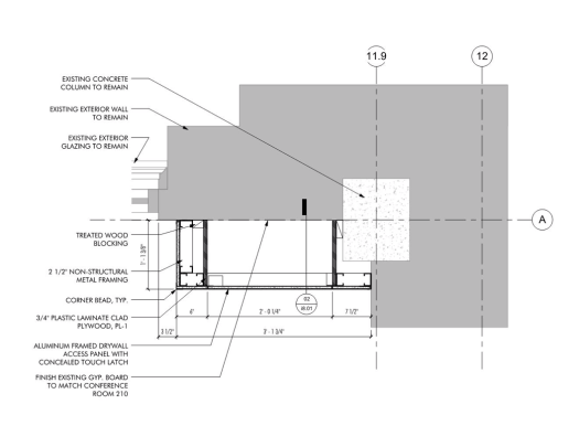
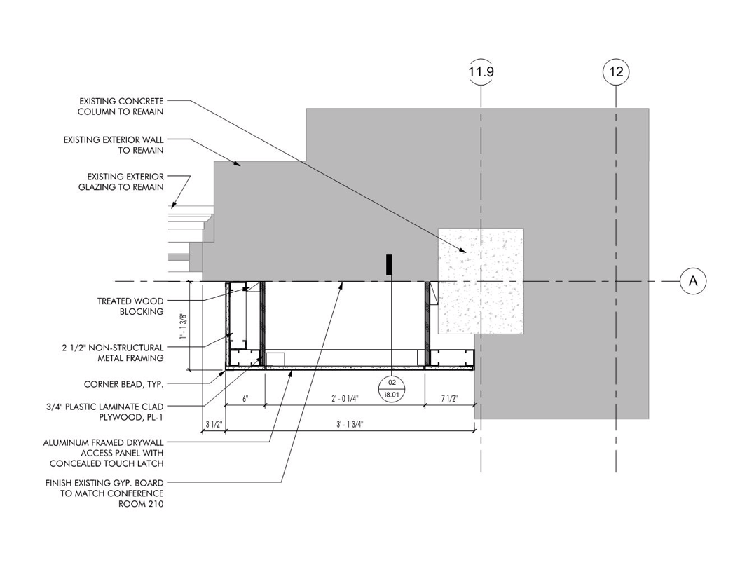
Here are some pretty typical examples of some details that have their appropriate notes with enough information for the contractor. They aren’t sentences or commentary, they are simply calling out exactly what the item is that they are pointing too. I’ve always thought the notes are there to support your drawing, in a way, framing it showing you what is important. I wrote a post a while back that explains why I use left and right justification in my drawings Drafting Lessons – Volume 1, don’t try to convince me otherwise, I’ve made up my mind. So please let either you or your architecture tell the story, not your notes.



