I think that most architects have that one, well maybe not just one, project that wakes you up in the middle of the night wondering how it’s going. Depending on the type of firm you are at it could be anything from a million square foot mixed use multi-building project to a single family residential expansion. The scale of the product usually doesn’t have as much to do with it as you might think. And right now, I’m smack dab in the middle of mine.
My firm is in the middle of expanding our Fort Worth office, and I’ve been tasked with helping with the design, producing all of the construction documents, and overseeing the construction administration. You know #whatanarchitectdoes. Yeah I know, that was a shameless hashtag plug if I’ve ever seen one. Most people would think that this little project would be a slam dunk. I mean, come on, it consists of a whole 2 rooms, a work area and a conference room. How hard could this really be? Well, what I realized pretty quickly into doing the drawings, was that this was going to be a project that is all about the details. The layout of rooms couldn’t be any simpler, it’s basically a rectangle inside another rectangle. But as you might guess, for an architects office, things are never that simple. Custom cabinetry, custom wall finishes, and even some pretty slick reveals to boot. Getting it all to come together correctly has definitely been a challenge, both for me and for the contractor.

The reveal detail around our conference room ceiling. It adds a really nice effect to make it appear like our ceiling is floating off the walls.

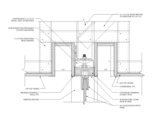
The door head detail of our conference room door, can anyone say “heavy”?

Working in an existing building, you always have some items that provide you with….. opportunities. This definitely led to one for us.

A built in cabinet to house our computer and other miscellaneous conference room stuff. Opportunity seized.
Anyway, the space is definitely coming along. Before too long we will have this space filled with desks and ready to go. Now if we could just get that back ordered base in. Ahhhh delays, don’t you just love ’em?


It’s amazing how a little bit of ceiling and carpet tile can make a space look almost finished. That and clearing out all of the construction equipment. Oh yeah, check out that custom wall finish. Three coats of textured base, a glaze, and then waxed; that was a pretty cool process to watch.



